La mezcla entre el arte y la historia en el Barrio de los Literatos

3, Calle del Infante, Madrid, MD, 28014

Key Details

Status
Venta
Type
Piso
Built In
1910

Overview

Bienvenido a la fascinante mezcla entre el arte y la historia que define al Barrio de las Letras en Madrid.

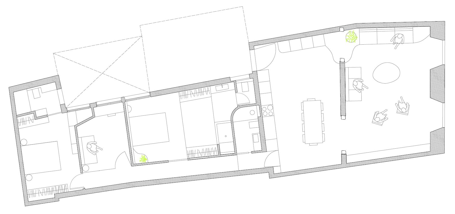
Disfrutarás de una ubicación luminosa en la 3a planta con vistas exteriores, techos altísimos que impresionan y tres amplias habitaciones, dos de ellas con lujosos baños en suite. Su moderno comedor con cocina integrada te invita a saborear tus momentos culinarios mientras te deleitas con la armonía del espacio. Dispone a su vez de un espacioso despacho diseñado para tu comodidad y productividad, brindándote el entorno perfecto para alcanzar tus metas. El mobiliario, elegantemente seleccionado y completamente nuevo, añade un toque de distinción y estilo. Además, cuenta con un práctico trastero que ofrece espacio adicional para almacenar tus pertenencias, completando así esta oferta irresistible.

Ubicado en el Barrio de las Letras de Madrid, rico en historia, cultura y arte. Este barrio, también conocido como el Barrio de los Literatos o de las Musas, ha sido hogar de algunos de los más grandes escritores españoles, como Miguel de Cervantes, Lope de Vega, Calderón de la Barca y Quevedo, entre otros.

Una de las características más fascinantes del Barrio de las Letras es su atmósfera bohemia y su arquitectura bien conservada, que transporta a los visitantes a través del tiempo a la España del Siglo de Oro. Calles empedradas, plazas acogedoras y fachadas adornadas con azulejos crean un ambiente único y evocador.

Explore the Area

Transportation
Restaurants
Shopping
Cafes & Bars
Arts & Entertainment
Fitness

Similar Properties

Leave a Reply

Your email address will not be published.

3 × dos =