La Luz de Bretón de los Herreros por Joana López de Madariaga

50, Calle de Bretón de los Herreros, Madrid, MD, 28003

Key Details

Status
Venta
Type
Piso
Built In
1945

Overview

HAUS Living pone a la venta esta magnífica vivienda de diseño a estrenar, con una reforma integral en una de las mejores zonas del barrio de Chamberí. La interiorista Joana López de Madariaga ha conseguido lo imposible con esta reforma: bañar de luz natural todos los espacios y una decoración en blanco y madera que estimula los sentidos.

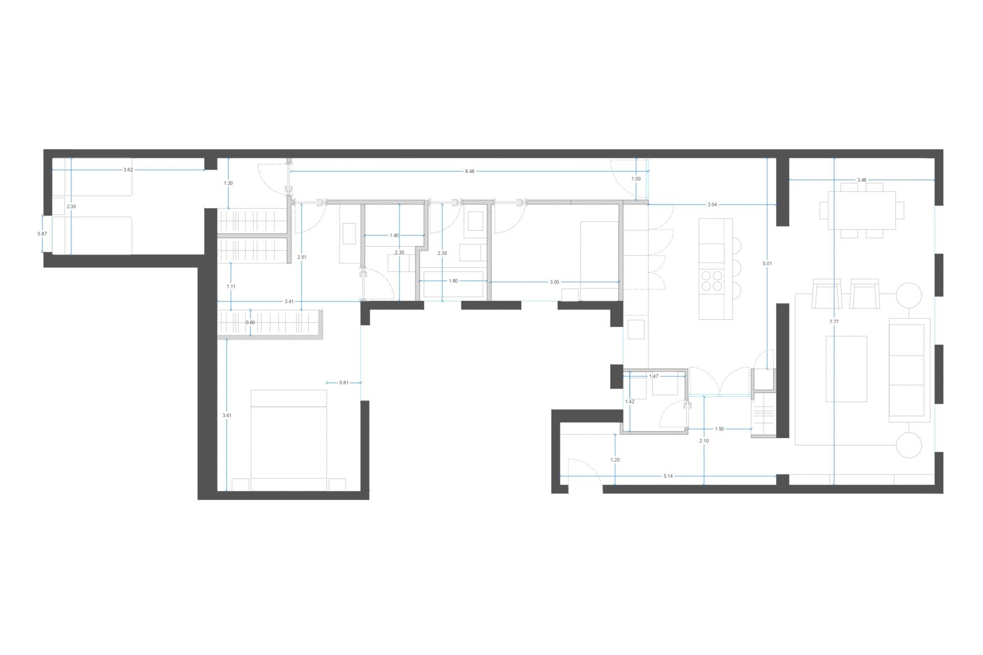
Ubicada en una primera planta de seis en edificio de 1945, la citada vivienda dispone de una distribución de hall de entrada con acceso al salón-comedor totalmente exterior y cocina moderna semi integrada por el comedor con una isla, 3 dormitorios, uno de ellos en suite, 2 baños completos y un aseo de cortesía.
La habitación principal consta de una entrada con zona de lavabo, con acceso al amplio vestidor y baño en suite.
Su cocina espectacular y moderna ha sido diseñada en exclusiva para la propiedad.

Todos los electrodomésticos están ocultos dotando al espacio de una utilidad funcional y moderna.
La vivienda destaca, a su vez, por su carpintería de alta gama con puertas de suelo a techo, y armarios empotrados con un amplio espacio de almacenaje e iluminación indirecta. Los suelos son de alta resistencia en tarima C6, salvo en los baños.
El aire acondicionado está canalizado en todas sus estancias y el sistema de calefacción es central.
La finca, además, cuenta con portero físico y ascensor recientemente renovado.

El barrio donde se encuentra ubicada (Ríos Rosas – Nuevos Ministerios), es un barrio del distrito Chamberí de la ciudad de Madrid. Este barrio se alza como una zona céntrica, tranquila y elegante donde sus residentes disfrutan de una vida muy de barrio con pintorescas plazas al aire libre junto a los vecinos de toda la vida.
A su vez, es reconocido como un área de negocios que dada su poca afluencia turística se afianza como un barrio apacible.

Explore the Area

Transportation
Restaurants
Shopping
Cafes & Bars
Arts & Entertainment
Fitness

Similar Properties

Leave a Reply

Your email address will not be published.

dieciseis − 5 =