Un rincón exclusivo en el corazón de Recoletos

7, Calle del Príncipe de Vergara, Madrid, MD, 28001

Key Details

Built In
1920

Overview

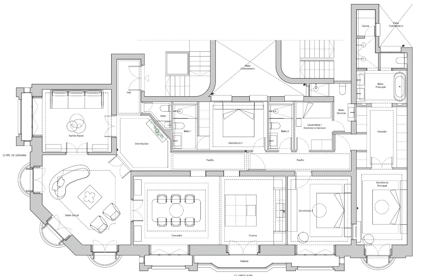
Ubicada en una de las calles más prestigiosas de Madrid, esta propiedad señorial ofrece una oportunidad única de inversión en pleno corazón del exclusivo barrio de Recoletos. Con 281 m² distribuidos en una finca clásica de 1920, este magnífico esquinazo en la cuarta planta destaca por su elegancia atemporal y su enorme potencial para personalización.

La propiedad cuenta con una fachada protegida que mantiene su encanto histórico, mientras que los techos de 3,50 metros aportan una sensación de amplitud y luminosidad inigualables. Los ocho ventanales exteriores, seis de ellos orientados hacia la tranquila calle Jorge Juan, garantizan una luz natural excepcional durante todo el día, ofreciendo vistas despejadas y una atmósfera de serenidad en pleno centro de la ciudad.

Con un total de cuatro habitaciones, cuatro baños, y un cuarto de servicio, la vivienda ofrece múltiples posibilidades de redistribución para adaptarse a los gustos y necesidades de su futuro propietario. Además, cuenta con la ventaja de un proyecto de transformación personalizable, permitiendo que cada rincón refleje el estilo de vida más exclusivo y moderno.

La finca dispone de solo 12 vecinos, lo que asegura la privacidad y tranquilidad, características tan valoradas en una propiedad de estas dimensiones. Además, los servicios premium de la finca, como portero, ascensor y escalera de servicio, se combinan con la excelente infraestructura y oferta cultural y social del barrio.

 

Explore the Area

Transportation
Restaurants
Shopping
Cafes & Bars
Arts & Entertainment
Fitness

Similar Properties