Exquisita Residencia en el Corazón de Castellana

25, Calle de Maldonado, Madrid, MD, 28006

Key Details

Built In
1925

Overview

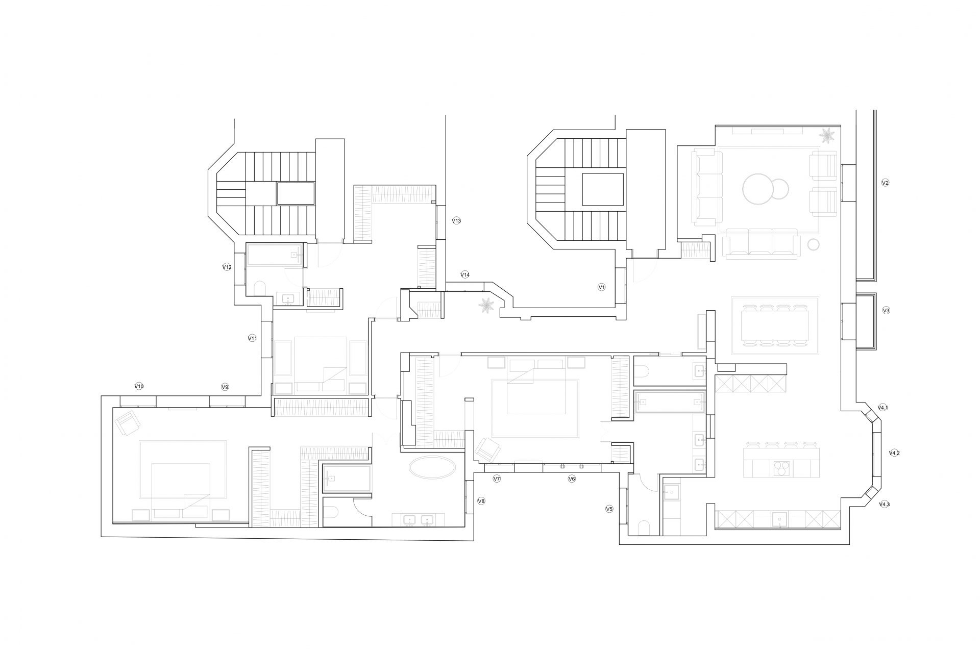
Situada en el prestigioso barrio de Castellana, en el distrito de Salamanca, esta espectacular vivienda de aproximadamente 316 m² ha sido completamente reformada para ofrecer un estilo de vida contemporáneo y sofisticado. Ubicada en la tercera planta de un edificio emblemático, esta propiedad destaca por su amplitud, luminosidad y elegancia, ideal para aquellos que buscan lo mejor de Madrid.

Distribuida en tres amplias habitaciones, cada una con baño en suite, y un total de cuatro baños, la vivienda ha sido diseñada con una atención meticulosa a los detalles. El salón, generoso y lleno de luz natural, se convierte en el lugar perfecto para la convivencia y el entretenimiento, ofreciendo un ambiente acogedor y refinado. La cocina, completamente equipada con electrodomésticos de alta gama y acabados de lujo, se integra perfectamente en el espacio abierto, ideal para aquellos que disfrutan de la gastronomía y las reuniones sociales.

Las habitaciones son un refugio privado, diseñadas para proporcionar confort y tranquilidad, mientras que los baños ofrecen un diseño contemporáneo con acabados premium, creando un oasis de relajación y estilo.

La ubicación es inmejorable, con acceso directo a las mejores tiendas, restaurantes de alta gama y espacios culturales que Salamanca tiene para ofrecer. Este barrio, conocido por su elegancia y exclusividad, brinda un entorno excepcional que combina vida urbana y tranquilidad.

Explore the Area

Transportation
Restaurants
Shopping
Cafes & Bars
Arts & Entertainment
Fitness

Similar Properties