Elegancia y Confort en el Corazón de Trafalgar

3, Calle de Olid, Madrid, MD, 28010

Key Details

Built In
1950

Overview

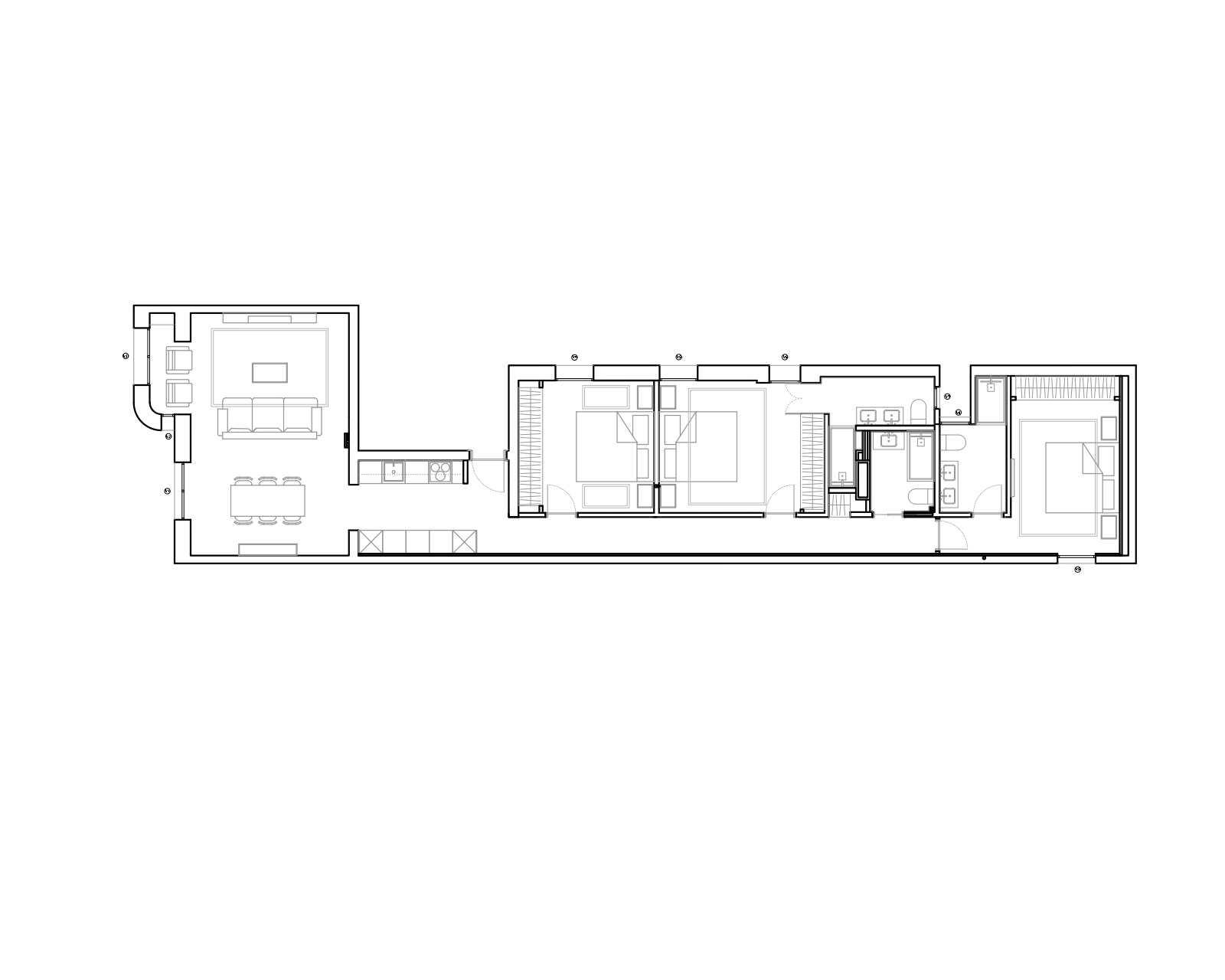
Situada en el encantador barrio de Trafalgar, en el distrito Chamberí, esta magnífica vivienda de aproximadamente 136 m² ha sido completamente reformada para ofrecer un estilo de vida contemporáneo y sofisticado. Ubicada en la cuarta planta de un edificio señorial, la propiedad destaca por su luminosidad y un diseño interior que combina confort y elegancia.

La distribución incluye tres amplias habitaciones y tres baños, ideal para familias o aquellos que deseen contar con espacio adicional para invitados. Cada detalle ha sido cuidadosamente considerado en la reforma, desde los acabados de alta calidad hasta la selección de materiales que aportan un toque de distinción. El salón, generoso y lleno de luz natural, se convierte en el espacio perfecto para la relajación o el entretenimiento, mientras que la cocina, equipada con electrodomésticos de última generación, se integra con el salón, facilitando la interacción y la convivencia.

Las habitaciones ofrecen un refugio privado, cada una diseñada para maximizar la comodidad y la funcionalidad, con armarios empotrados y ventanas que permiten disfrutar de vistas despejadas. Los baños, modernos y estilizados, combinan un diseño funcional con acabados de lujo, creando un ambiente relajante y elegante.

Acceso inmejorable a una amplia gama de servicios, desde tiendas boutique hasta restaurantes de alta cocina, así como a espacios culturales y recreativos. Este barrio vibrante y bien comunicado es perfecto para quienes buscan disfrutar de la vida urbana sin renunciar a la tranquilidad de un hogar acogedor.

Explore the Area

Transportation
Restaurants
Shopping
Cafes & Bars
Arts & Entertainment
Fitness

Similar Properties